Wir finden für Ihre Gruppe das richtige Gruppenhaus, die optimale Gruppenunterkunft, das ideale Selbstversorgerhaus oder die passende Ferienunterkunft in Dänemark, egal ob Sie eine Unterkunft in Jütland, auf Seeland oder auf den Inseln suchen!



03453410  

Paaruplejren, Dänemark

03-45-3410 Für Gruppen, die die Natur lieben
Aussenansicht vom Gruppenhaus 03453410 Paaruplejren Dänemark 7442 Engesvang für Gruppenfreizeiten
Lage: 7442, Engesvang in Dänemark
Unterkunftsart: Gruppenhaus Mitteljütland
Geeignet für: Gruppenunterkunft
Kapazität: 45 - 70 Personen in 13 Schlafzimmern:
2x2, 9x4, 2x16
Aufenthaltsräume: 4
Duschen: 8
WCs: 10
Baden:

Küche: Mischküche
Grundstück: 25000 qm
Verpflegung: Selbstverpflegung
Sport & Co.: Sportplatz, , Spielplatz, Spielwiese,
Unsere Meinung: Ein Unterkunft in Alleinlage im Waldgebiet




  
Preisliste vom Gruppenhaus 03453410 Paaruplejren in Dänemark 7442 Engesvang für Gruppenreisen
Lage: Karte von der Gruppenunterkunft 03453410 Paaruplejren in Dänemark 7442 Engesvang für Kinderfreizeiten

Diese Unterkunft liegt im Herzen der Region Mitteljütland, westlich von Silkeborg – nur wenige Kilometer vom malerischen Bøllingsø entfernt.
Die Umgebung des Camps bietet einzigartige Möglichkeiten für Spaziergänge, Naturkunde, Lagerfeueraktivitäten und Ruhe.
Gleichzeitig ist das Camp mit dem Auto und Bus leicht zu erreichen.

Die Vision:
Diese Unterkunft soll in erster Linie für Menschen sein, die gerne in der Natur sind und Gemeinschaft erleben möchten unabhängig von Alter und Herkunft.
Naturverbundenheit – wo man die Erde unter den Füßen und die Luft in den Lungen spüren kann. Einfache Werte – wo das Nahe, das Echte und das Leise Raum finden.
Ein Ort, an dem sich Kinder, Jugendliche und  Ewachsene Erinnerungen schaffen, sich wohlfühlen und Raum für Besinnung, Spiel und Präsenz finden sollen.

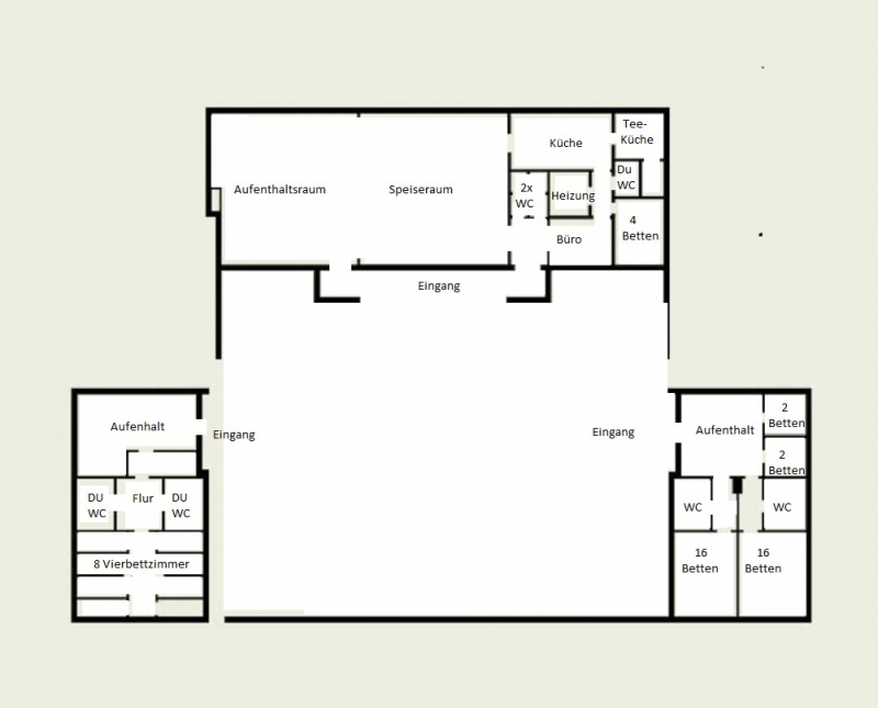
Grundrisse von der Gruppenunterkunft 03453410 Paaruplejren in Dänemark 7442 Engesvang für Jugendfreizeiten Grundrisse von der Gruppenunterkunft 03453410 Paaruplejren in Dänemark 7442 Engesvang für Jugendfreizeiten
Kapazität: 45 - 70 Personen in 13 Schlafzimmern:
2x2, 9x4, 2x16
Es gibt folgende Zimmer:
- Im Hauptgebäude: 1 Vierbettzimmer
- Im Gebäudeteil rechtsbefinden sich: 
   - 2 Zweibettzimmer
   - 2 Schlafsäle mit je 16 Betten
   - Zu jedem Schlafsaal gehören 2 Duschen und 2 Toiletten
   - 1 gemeinsamer Aufenthaltsraum mit 2 Sofas, 1 Tisch und einem Stuhl
- Im Gebäudeteil links befinden sich:
  -  8 Vierbettzimmer mit Etagenbetten und Waschbecken
  - 4 Duschen und 4 Toiletten-  Etagebbetten)
  - 1 gemeinsamer Aufenthaltsraum mit Sofagruppe, 1 Tisch und 6 Stühle
Aufenthaltsräume: 4
Küche: Mischküche
Gutes Essen beginnt mit guter Ausrüstung
 
Die Campküche ist wie eine moderne Großküche voll ausgestattet und ermöglicht das Kochen für viele Personen. Hier finden Sie unter anderem:
 
- 1 Industrielle Spülmaschine
- 1 Heißluftofen mit Dampffunktion
- 1 Kochtisch mit vier großen Platten
- Geschirr, Pfannen und Töpfe, Besteck und Geschirr sowie diverse elektrische Küchengeräte und -helfer
 
Sie müssen nicht alles selbst machen.
 Wenn Sie das Essen lieber von außerhalb liefern lassen möchten, arbeiten wir mit mehreren lokalen Lieferanten und Catering-Unternehmen zusammen, die vom Frühstück und Lunchpaketen bis hin zu köstlichen Buffets und Abendmenüs alles anbieten können.
Sport & Co.: Sportplatz, , Spielplatz, Spielwiese
Freizeit:
Bolzplatz mit kleinen Toren
Ausflüge:
geeignet fürGruppenunterkunft
Haustiere Leider nicht erlaubt.
RauchenErlaubt außer in den Schlafräumen.

Bilder sagen mehr als Worte:

Aussenansicht vom Gruppenhaus 03453410 Paaruplejren in Dänemark 7442 Engesvang für Gruppenfreizeiten Aussenansicht vom Gruppenhaus 03453410 Paaruplejren in Dänemark 7442 Engesvang für Gruppenfreizeiten Weitere Aussenansichten vom Gruppenhaus 03453410 Paaruplejren in Dänemark 7442 Engesvang für Gruppenreisen Küchenbilder von der Gruppenunterkunft 03453410 Paaruplejren in Dänemark 7442 Engesvang für Familienfreizeiten Küchenbilder von der Gruppenunterkunft 03453410 Paaruplejren in Dänemark 7442 Engesvang für Familienfreizeiten Küchenbilder von der Gruppenunterkunft 03453410 Paaruplejren in Dänemark 7442 Engesvang für Familienfreizeiten Bilder der Aufenthaltsräume vom Gruppenhaus 03453410 Paaruplejren in Dänemark 7442 Engesvang für Konfifreizeiten Bilder der Aufenthaltsräume vom Gruppenhaus 03453410 Paaruplejren in Dänemark 7442 Engesvang für Konfifreizeiten Bilder der Aufenthaltsräume vom Gruppenhaus 03453410 Paaruplejren in Dänemark 7442 Engesvang für Konfifreizeiten Schlafzimmerbilder vom Gruppenhaus 03453410 Paaruplejren in Dänemark 7442 Engesvang für Gruppenfreizeiten Terrassenbilder vom Selbstversorgerhaus 03453410 Paaruplejren in Dänemark 7442 Engesvang für Jugendfreizeiten Bilder vom Gelände vom Selbstversorgerhaus 03453410 Paaruplejren in Dänemark 7442 Engesvang für Familienfreizeiten Bilder der Spielwiese vom Gruppenhaus 03453410 Paaruplejren in Dänemark 7442 Engesvang für Konfifreizeiten

Weitere Angebote:   03453003 Ansicht BINDERNÆS Efterskole Dänemark
BINDERNÆS Efterskole


  03453028 Ansicht BORNHOLMS Efterskole Dänemark
BORNHOLMS Efterskole


  03453469 Ansicht BORREMOSE Centeret Dänemark
BORREMOSE Centeret


  03453428 Ansicht DOKKEDAL-Centeret (ehemalige Efterskole) Dänemark
DOKKEDAL-Centeret (ehemalige Efterskole)


  03453902 Ansicht EGÃ… Ungdomshøjskole Dänemark
EGÅ Ungdomshøjskole


  03453824 Ansicht Ehem. KLK-Gruppenhaus HENNE-Bad Dänemark
Ehem. KLK-Gruppenhaus HENNE-Bad


  03453086 Ansicht EPOS Efterskole Dänemark
EPOS Efterskole


  03453708 Ansicht Farsø Efterskole Dänemark
Farsø Efterskole


  03453144 Ansicht Ferienhaus  HOEGILD Dänemark
Ferienhaus HOEGILD


  03453431 Ansicht Ferienhaus KOLDKÆR Dänemark
Ferienhaus KOLDKÆR


  03453150 Ansicht Ferienhaus SKOVHYTTERNE I MARBÆK Dänemark
Ferienhaus SKOVHYTTERNE I MARBÆK


  03453448 Ansicht Ferienhaus STRANDGÃ…RDEN Dänemark
Ferienhaus STRANDGÃ…RDEN


  03453061 Ansicht GRIBSKOV Efterskole Dänemark
GRIBSKOV Efterskole


  03453304 Ansicht Gruppenhaus  FANØ Dänemark
Gruppenhaus FANØ


  03453227 Ansicht Gruppenhaus  FJELLERUP Dänemark
Gruppenhaus FJELLERUP


  03453429 Ansicht Gruppenhaus ASSING  Dänemark
Gruppenhaus ASSING


  03453500 Ansicht Gruppenhaus BETHESDA Dänemark
Gruppenhaus BETHESDA


  03453479 Ansicht Gruppenhaus BLOKHUSCENTER Dänemark
Gruppenhaus BLOKHUSCENTER


  03453229 Ansicht Gruppenhaus BLÃ…VANDGÃ…RD  Dänemark
Gruppenhaus BLÃ…VANDGÃ…RD


  03453102 Ansicht Gruppenhaus BOGENSHOLMLEJREN Dänemark
Gruppenhaus BOGENSHOLMLEJREN


  03453002 Ansicht Gruppenhaus BULBJERG HUS Dänemark
Gruppenhaus BULBJERG HUS


  03453222 Ansicht Gruppenhaus DELBAKKEGÃ…RDS SKOLE Dänemark
Gruppenhaus DELBAKKEGÃ…RDS SKOLE


  03453034 Ansicht Gruppenhaus DOKKEDAL Dänemark
Gruppenhaus DOKKEDAL


  03453114 Ansicht Gruppenhaus FIRBJERGSANDE Dänemark
Gruppenhaus FIRBJERGSANDE


  03453109 Ansicht Gruppenhaus FREDERIKSHØJ Dänemark
Gruppenhaus FREDERIKSHØJ


  03453697 Ansicht Gruppenhaus HAVNSØLEJREN Dänemark
Gruppenhaus HAVNSØLEJREN


  03453112 Ansicht Gruppenhaus HOUENS ODDE - STENSGÃ…RDEN Dänemark
Gruppenhaus HOUENS ODDE - STENSGÃ…RDEN


  03453111 Ansicht Gruppenhaus HOUENS ODDE GILWELLHYTTERNE Dänemark
Gruppenhaus HOUENS ODDE GILWELLHYTTERNE


  03453142 Ansicht Gruppenhaus HOVBORG Dänemark
Gruppenhaus HOVBORG


  03453315 Ansicht Gruppenhaus HUMLUM LEJREN Dänemark
Gruppenhaus HUMLUM LEJREN


  03453127 Ansicht Gruppenhaus HVIDE KLIT Dänemark
Gruppenhaus HVIDE KLIT


  03453424 Ansicht Gruppenhaus JARLSGÃ…RD Dänemark
Gruppenhaus JARLSGÃ…RD


  03453029 Ansicht Gruppenhaus KNØSEN Dänemark
Gruppenhaus KNØSEN


  03453160 Ansicht Gruppenhaus KONGEBAKKEN Dänemark
Gruppenhaus KONGEBAKKEN


  03453450 Ansicht Gruppenhaus KONGELEJREN Dänemark
Gruppenhaus KONGELEJREN


  03453704 Ansicht Gruppenhaus LAERKEREDEN Dänemark
Gruppenhaus LAERKEREDEN


  03453436 Ansicht Gruppenhaus LANGBJERGGAARD Dänemark
Gruppenhaus LANGBJERGGAARD


  03453426 Ansicht Gruppenhaus LIEN Dänemark
Gruppenhaus LIEN


  03453300 Ansicht Gruppenhaus LILLE STRANDHAVE Dänemark
Gruppenhaus LILLE STRANDHAVE


  03453458 Ansicht Gruppenhaus LM-LEJREN Dänemark
Gruppenhaus LM-LEJREN


  03453079 Ansicht Gruppenhaus LURENDAL Dänemark
Gruppenhaus LURENDAL


  03453046 Ansicht Gruppenhaus LYNGGÃ…RDEN Dänemark
Gruppenhaus LYNGGÃ…RDEN


  03453151 Ansicht Gruppenhaus LYNGTOPPEN Dänemark
Gruppenhaus LYNGTOPPEN


  03453303 Ansicht Gruppenhaus MARBÆK Dänemark
Gruppenhaus MARBÆK


  03453123 Ansicht Gruppenhaus MØLLEGÃ…RDEN Dänemark
Gruppenhaus MØLLEGÅRDEN


  03453703 Ansicht Gruppenhaus MØNTERVANG Dänemark
Gruppenhaus MØNTERVANG


  03453059 Ansicht Gruppenhaus NALDTANGLEJREN Dänemark
Gruppenhaus NALDTANGLEJREN


  03453465 Ansicht Gruppenhaus ODDESUNDLEJREN Dänemark
Gruppenhaus ODDESUNDLEJREN


  03453108 Ansicht Gruppenhaus PLETTEN Dänemark
Gruppenhaus PLETTEN


  03453311 Ansicht Gruppenhaus REMMERSTRANDLEJREN Dänemark
Gruppenhaus REMMERSTRANDLEJREN


  03453145 Ansicht Gruppenhaus SANDBJERG Dänemark
Gruppenhaus SANDBJERG


  03453669 Ansicht Gruppenhaus SILDESTRUPLEJREN Dänemark
Gruppenhaus SILDESTRUPLEJREN


  03453122 Ansicht Gruppenhaus SOLSBÆKHYTTEN Dänemark
Gruppenhaus SOLSBÆKHYTTEN


  03453430 Ansicht Gruppenhaus STENDERUPHAGELEJREN Dänemark
Gruppenhaus STENDERUPHAGELEJREN


  03453039 Ansicht Gruppenhaus STENDISLEJREN Dänemark
Gruppenhaus STENDISLEJREN


  03453106 Ansicht Gruppenhaus SØBORG Dänemark
Gruppenhaus SØBORG


  03453706 Ansicht Gruppenhaus Sønderborg Dänemark
Gruppenhaus Sønderborg


  03453478 Ansicht Gruppenhaus Tandallejren Dänemark
Gruppenhaus Tandallejren


  03453427 Ansicht Gruppenhaus TANNISBUGT Dänemark
Gruppenhaus TANNISBUGT


  03453671 Ansicht Gruppenhaus THOMAS P.HEJLES Dänemark
Gruppenhaus THOMAS P.HEJLES


  03453403 Ansicht Gruppenhaus TONNESHØJ Dänemark
Gruppenhaus TONNESHØJ


  03453082 Ansicht Gruppenhaus VARDEBORG Dänemark
Gruppenhaus VARDEBORG


  03453677 Ansicht Gruppenhaus VISBY FRITIDSCENTER Dänemark
Gruppenhaus VISBY FRITIDSCENTER


  03453438 Ansicht Gruppenunterkunft  BJERGBO Dänemark
Gruppenunterkunft BJERGBO


  03453175 Ansicht Gruppenunterkunft KLITTEN Dänemark
Gruppenunterkunft KLITTEN


  03453468 Ansicht HOEJER Efterskole Dänemark
HOEJER Efterskole


  03453472 Ansicht Jegindølejren (ehem. Efterskole) Dänemark
Jegindølejren (ehem. Efterskole)


  03453822 Ansicht KLK-Gruppenhaus -  LILLE OKSE Dänemark
KLK-Gruppenhaus - LILLE OKSE


  03453821 Ansicht KLK-Gruppenhaus -  LØNSØMAJ Dänemark
KLK-Gruppenhaus - LØNSØMAJ


  03453823 Ansicht KLK-Gruppenhaus - ALHAGE Dänemark
KLK-Gruppenhaus - ALHAGE


  03453820 Ansicht KLK-Gruppenhaus - BAUNEBJERG Dänemark
KLK-Gruppenhaus - BAUNEBJERG


  03453832 Ansicht KLK-Gruppenhaus - BJERGE Dänemark
KLK-Gruppenhaus - BJERGE


  03453814 Ansicht KLK-Gruppenhaus - EGILSHOLM Dänemark
KLK-Gruppenhaus - EGILSHOLM


  03453806 Ansicht KLK-Gruppenhaus - ERIKSMINDE Dänemark
KLK-Gruppenhaus - ERIKSMINDE


  03453807 Ansicht KLK-Gruppenhaus - FERIEGAARDEN Dänemark
KLK-Gruppenhaus - FERIEGAARDEN


  03453812 Ansicht KLK-Gruppenhaus - FRENNENAES Dänemark
KLK-Gruppenhaus - FRENNENAES


  03453809 Ansicht KLK-Gruppenhaus - HØJBJERGHUS Dänemark
KLK-Gruppenhaus - HØJBJERGHUS


  03453802 Ansicht KLK-Gruppenhaus - KAJESTENSHUSET Dänemark
KLK-Gruppenhaus - KAJESTENSHUSET


  03453826 Ansicht KLK-Gruppenhaus - KLITSTUEN Dänemark
KLK-Gruppenhaus - KLITSTUEN


  03453800 Ansicht KLK-Gruppenhaus - LILLE KATRINEDAL Dänemark
KLK-Gruppenhaus - LILLE KATRINEDAL


  03453813 Ansicht KLK-Gruppenhaus - NABOEN Dänemark
KLK-Gruppenhaus - NABOEN


  03453844 Ansicht KLK-Gruppenhaus - NAESBYSTRAND Dänemark
KLK-Gruppenhaus - NAESBYSTRAND


  03453804 Ansicht KLK-Gruppenhaus - NOERREVANG Dänemark
KLK-Gruppenhaus - NOERREVANG


  03453828 Ansicht KLK-Gruppenhaus - SAEBYSTRAND Dänemark
KLK-Gruppenhaus - SAEBYSTRAND


  03453825 Ansicht KLK-Gruppenhaus - SANDSGÃ…RD Dänemark
KLK-Gruppenhaus - SANDSGÃ…RD


  03453808 Ansicht KLK-Gruppenhaus - SKAMLEBÆK Dänemark
KLK-Gruppenhaus - SKAMLEBÆK


  03453805 Ansicht KLK-Gruppenhaus - SKANSEN Dänemark
KLK-Gruppenhaus - SKANSEN


  03453829 Ansicht KLK-Gruppenhaus - SKOVBYHOLM Dänemark
KLK-Gruppenhaus - SKOVBYHOLM


  03453818 Ansicht KLK-Gruppenhaus - SKOVHYTTEN Dänemark
KLK-Gruppenhaus - SKOVHYTTEN


  03453830 Ansicht KLK-Gruppenhaus - STRANDLYST Dänemark
KLK-Gruppenhaus - STRANDLYST


  03453819 Ansicht KLK-Gruppenhaus - THORØGAARD Dänemark
KLK-Gruppenhaus - THORØGAARD


  03453817 Ansicht KLK-Gruppenhaus - VESTERBORG Dänemark
KLK-Gruppenhaus - VESTERBORG


  03453835 Ansicht KLK-Gruppenhaus NORA MORTENSEN MINDE Dänemark
KLK-Gruppenhaus NORA MORTENSEN MINDE


  03453816 Ansicht KLK-Gruppenhaus STENKILDE Dänemark
KLK-Gruppenhaus STENKILDE


  03453827 Ansicht KLK-Gruppenhaus THORUPSTRAND Dänemark
KLK-Gruppenhaus THORUPSTRAND


  03453815 Ansicht KLK-Gruppenhaus ØSTERSØN Dänemark
KLK-Gruppenhaus ØSTERSØN


  03453031 Ansicht KOLDING Efterskole Dänemark
KOLDING Efterskole


  03453173 Ansicht KONGEÃ…DALENS Efterskole Dänemark
KONGEÃ…DALENS Efterskole


  03453230 Ansicht Kursuscenter HO LEJRSKOLE Dänemark
Kursuscenter HO LEJRSKOLE


  03453053 Ansicht MELLERUP Centret Dänemark
MELLERUP Centret


  03453410 Ansicht Paaruplejren Dänemark
Paaruplejren


  03453480 Ansicht Play Efterskole Dänemark
Play Efterskole


  03453471 Ansicht REJSBY EUROPÆISKE Efterskole Dänemark
REJSBY EUROPÆISKE Efterskole


  03453235 Ansicht Selbstversorgerhaus  DOLLERUP Dänemark
Selbstversorgerhaus DOLLERUP


  03453182 Ansicht SKALS Efterskole Dänemark
SKALS Efterskole


  03453095 Ansicht SKAMLING Efterskole Dänemark
SKAMLING Efterskole


  03453075 Ansicht STIDSHOLT Efterskole Dänemark
STIDSHOLT Efterskole


  03453185 Ansicht Sundeved Centret Dänemark
Sundeved Centret


  03453101 Ansicht Venoeborg Dänemark
Venoeborg


  03453467 Ansicht VESTERBØLLE Efterskole  Dänemark
VESTERBØLLE Efterskole


  03453000 Ansicht Ã…BÆK Efterskole Dänemark
ÅBÆK Efterskole